Duplex 3+1 au centre de la région de Novi Sad en Serbie
#SSe 20-09
06.08.2025
Caractéristiques du bien
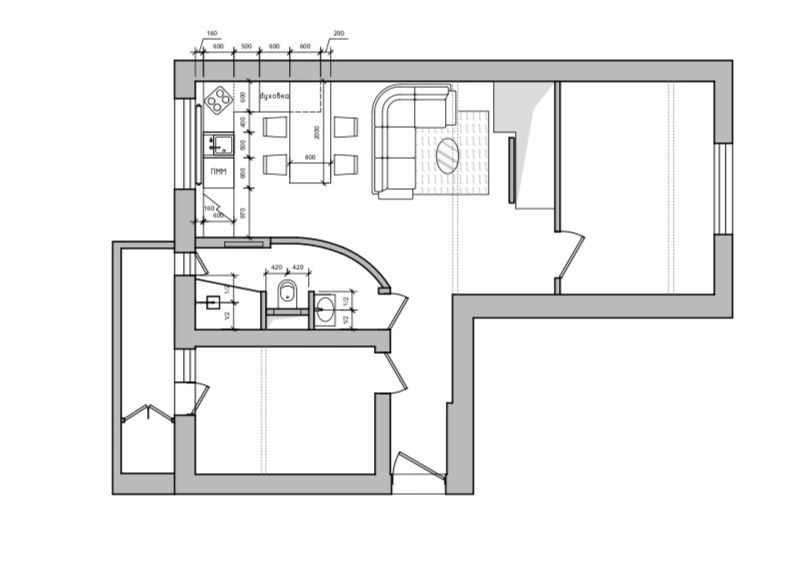
Plan
3 Sur demande
Superficie du bien
83 m²
place de parking non couverte
Obtenir l'adresse exacte
L'agent n'a pas fourni l'adresse exacte de ce bien
Caractéristiques du bien
La vente est réalisée par le principal expert du marché immobilier et d'investissement international VelesClub Int. Le bien a été analysé et approuvé par les spécialistes de l'entreprise.
À vendre, un magnifique appartement duplex au cœur de Novi Sad, à seulement 2 minutes du boulevard Oslobozhdenie. La superficie totale de l'appartement est de 83 m2, à cela s'ajoute une terrasse de 5 m2 et un espace de stockage d'environ 10 m2. L'appartement est situé au 4ème étage d'un bâtiment construit en 2003, bénéficiant de fenêtres sur deux côtés avec une vue imprenable sur la ville et la montagne de Frushka. Des travaux de rénovation de designer ont été réalisés avec des matériaux de finition premium et des systèmes d'ingénierie modernes ont été installés. L'appartement a bénéficié d'une rénovation complète des combles avec remplacement de la toiture, isolation et vitrage de haute qualité. Le bien est vendu avec des meubles sur mesure neufs, des appareils électroménagers et un décor de designer. Parmi les commodités : climatiseurs, ventilation contrôlée, chauffage par le sol, lave-vaisselle. Novi Sad est la deuxième plus grande ville de Serbie, centre culturel et économique de la province autonome de Voïvodine, attirant les investisseurs grâce à un marché immobilier en pleine expansion et un fort potentiel de hausse des prix du logement.
Logement secondaire en Serbie, vente par le représentant du propriétaire, VelesClub Int. est le représentant du vendeur, une transaction sécurisée est accompagnée par des spécialistes de l'entreprise.
Le prix inclut tous les services disponibles de l'opérateur immobilier international VelesClub Int. : paiement en différentes devises, transaction à distance, “transaction sécurisée”, “conditions individuelles”, “évaluation de portefeuille immobilier”, “gestion immobilière”! ✅ L'annonce n'est pas une offre publique, le prix peut changer, merci de vérifier auprès de nos managers pour des informations à jour.
Numéros de téléphone pour contacter les spécialistes de l'entreprise :
+905066002222 Wapp 24/7 ✅
Achat à l'étranger ou élaboration d'un budget ?
Nous vous aidons à choisir un bien, comparer les quartiers et vous accompagner dans toutes les démarches
Demander une consultationMeilleures offres
à Novi Sad





