आरामदायक 1+1 अपार्टमेंट, ग्रैंड बे, मॉरीशस
#SMu 20-29
259
12.04.2026
संपत्ति की विशेषताएँ
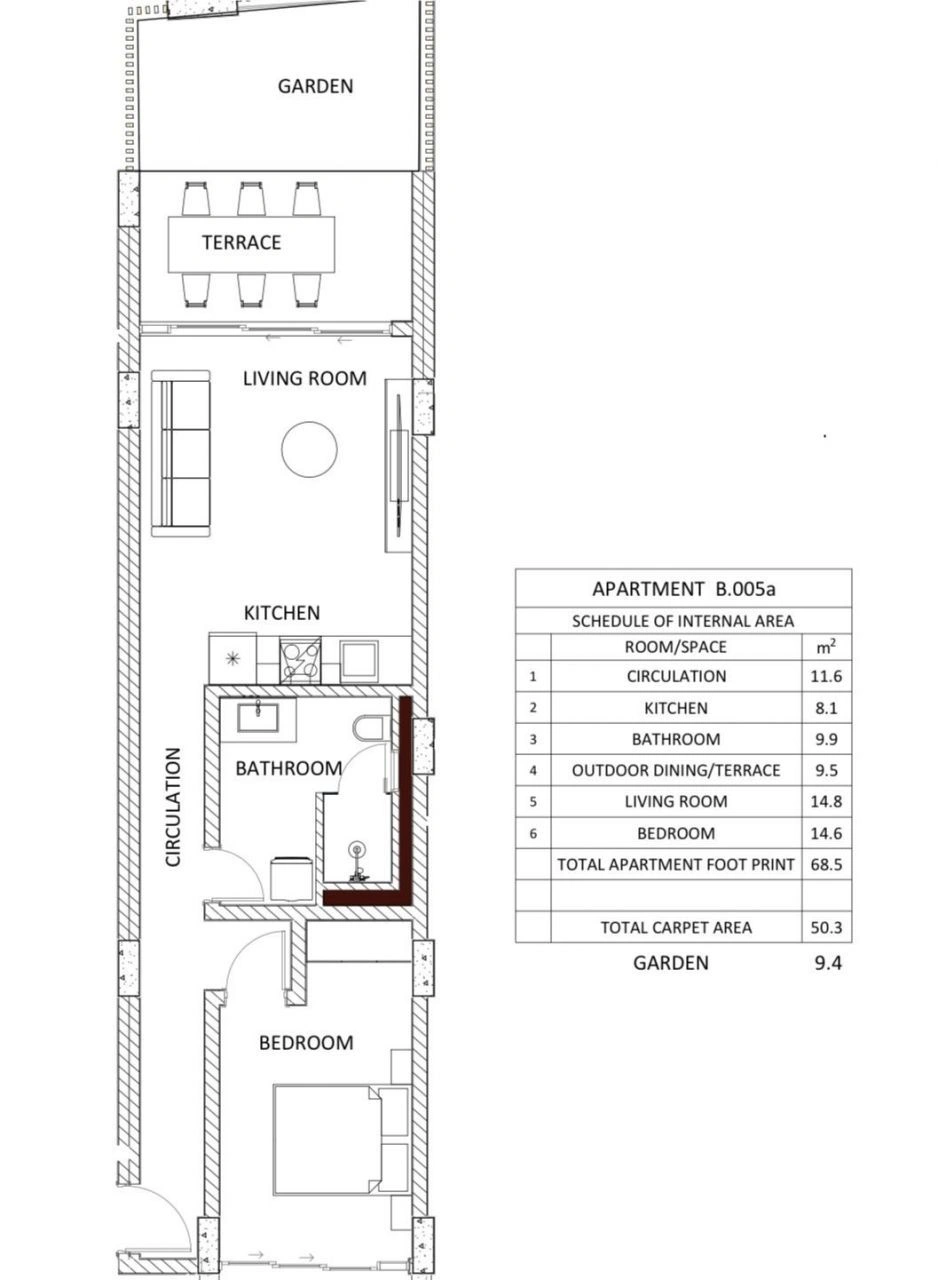
योजना
1 1
संपत्ति का क्षेत्रफल
68 m²
फिटनेस रूम
खुला पार्किंग स्थल
खुला पूल
छत
समुद्र के पास
सटीक पता प्राप्त करें
इस संपत्ति के लिए एजेंट ने सटीक पता प्रदान नहीं किया है
संपत्ति की विशेषताएँ
यह बिक्री अंतरराष्ट्रीय रियल एस्टेट और निवेश बाजार के प्रमुख विशेषज्ञ VelesClub Int. द्वारा प्रस्तुत है; संपत्ति की जांच और स्वीकृति कंपनी के विशेषज्ञों द्वारा की गई है।
ग्रैंड बे के प्रतिष्ठित ग्राउंड-फ़्लोर कॉम्प्लेक्स में स्टाइलिश अपार्टमेंट बिक्री के लिए उपलब्ध हैं। यह रेजिडेंस उत्तरी तट के सुरम्य इलाके Trou aux Biches में स्थित है। लेआउट में एक बेडरूम शामिल है, कुल क्षेत्रफल 68.5 वर्ग मी. है। कॉम्प्लेक्स के निवासी फिटनेस सेंटर, स्पा, बड़ा स्विमिंग पूल और खेल के मैदानों तक पहुँच रखते हैं। साइट पर ट्रॉपिकल गार्डन, कॉन्सिएर्ज और सुरक्षित पार्किंग भी उपलब्ध है। रेसिडेंस पारंपरिक मॉरिशियन शैली में प्राकृतिक लकड़ी और पत्थर का उपयोग करके सुसज्जित किए गए हैं। समुद्र के किनारे पहली पंक्ति पर एक होटल है जिसमें रेस्तरां और बार हैं, जिन्हें कॉम्प्लेक्स के निवासी उपयोग कर सकते हैं। ग्रैंड बे उत्तरी तट का सबसे विकसित रिसॉर्ट नगर है जिसमें शॉपिंग मॉल, रेस्तरां, चिकित्सा सुविधाएँ और अंतरराष्ट्रीय स्कूल जैसी शानदार बुनियादी सुविधाएँ मौजूद हैं। यहाँ रियल एस्टेट में निवेश विशेष रूप से आकर्षक है क्योंकि पर्यटन प्रवाह अधिक है और किराये की मांग लगातार बढ़ रही है।
सेकेंडरी आवास, मालिक के प्रतिनिधि VelesClub Int. से बिक्री। वे विक्रेता के प्रतिनिधि हैं; कंपनी के विशेषज्ञों की निगरानी में सुरक्षित लेन-देन किया जाता है।
मूल्य में अंतरराष्ट्रीय रियल एस्टेट ऑपरेटर VelesClub Int. की सभी उपलब्ध सेवाएँ शामिल हैं: विभिन्न मुद्राओं में भुगतान, रिमोट ट्रांज़ैक्शन, "सुरक्षित लेन-देन", "व्यक्तिगत शर्तें", "रियल एस्टेट पोर्टफोलियो मूल्यांकन", "प्रॉपर्टी मैनेजमेंट", "Family Office"!
कंपनी के विशेषज्ञों से संपर्क के लिए फोन:
+905066002222 Wapp 24/7
यह घोषणा सार्वजनिक प्रस्ताव नहीं है, कीमत में परिवर्तन संभव है, नवीनतम जानकारी के लिए कृपया हमारे प्रबंधकों से संपर्क करें! कृपया कॉल करें
क्या आप विदेश में संपत्ति खरीदना चाहते हैं या बजट बना रहे हैं?
हम संपत्ति चुनने, क्षेत्रों की तुलना करने और प्रक्रिया में मार्गदर्शन करने में आपकी मदद करेंगे
परामर्श प्राप्त करेंसर्वश्रेष्ठ प्रस्ताव
ग्रैंड बे में






