Villa 4+1 en Lappeenranta con amplia terraza, Finlandia
#SFi 20-17
398
21.01.2026
Características del inmueble
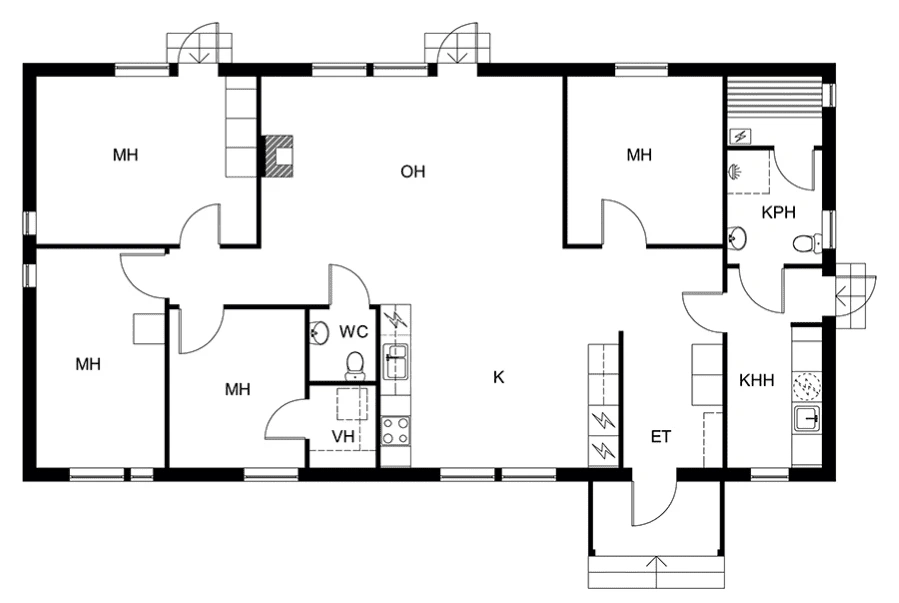
Plan
4 A petición
Superficie del inmueble
121 m²
Plaza de aparcamiento exterior
terraza
Solicitar la dirección exacta
El agente no ha facilitado la dirección exacta de esta propiedad
Características del inmueble
Vivienda de segunda mano, venta a través del representante del propietario, VelesClub Int. Este actúa como representante del vendedor y la operación se realiza de forma segura bajo la supervisión de los expertos de la compañía.
Magnífica villa en venta en la zona de Kivisalmi de Lappeenranta, construida en 2017. La superficie total de la casa es de 121.5 m2 e incluye cuatro dormitorios espaciosos y una amplia cocina-salón con acceso a una terraza de 36 m2. En una parcela de 792 m2 hay un garaje doble con un espacio de almacenamiento adicional de más de 60 m2. La vivienda cuenta con un sistema de calefacción moderno con bomba de calor, sauna eléctrica, aire acondicionado y todos los electrodomésticos necesarios. La parcela está ajardinada: caminos empedrados, césped cuidado y parterres decorativos. A poca distancia a pie hay playa, una parada de autobús y un supermercado Prisma. Lappeenranta es una ciudad de desarrollo dinámico a orillas del lago Saimaa, atractiva para la inversión por su infraestructura desarrollada y su proximidad a la frontera con Rusia, lo que hace que la adquisición de inmuebles aquí sea especialmente prometedora.
El precio incluye todos los servicios disponibles del operador inmobiliario internacional VelesClub Int.: pago en varias divisas, transacción a distancia, «transacción segura», «condiciones individuales», «valoración de cartera inmobiliaria», «gestión inmobiliaria», «Family Office»!
Números de teléfono para contactar con los expertos de la empresa:
+905066002222 Wapp 24/7
El anuncio no es una oferta pública; el precio puede variar, consulte con nuestros gestores para obtener información actualizada. Por favor, llame
¿Comprando en el extranjero o planificando un presupuesto?
Te ayudaremos a elegir una propiedad, comparar zonas y gestionar el proceso
Solicitar consultaMejores ofertas
en Lappeenranta






